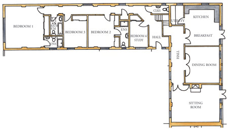
4 bedroom single storey attached house with
vaulted ceilings, double cart lodge, garage and store.
Artist’s impression
GROUND FLOOR
Sitting Room
6.3m x 5.1m
20' 8" x 16' 9"
Dining Room
4.8m x 4.3m
15' 9" x 14' 1"
Kitchen/Breakfast Area
5.7m x 4.3m
18' 8" x 14' 1"
Utility
2.4m x 1.8m
7' 10" x 5' 11"
Hall
Cloakroom
2.1m x 1.1m
6' 11" x 3' 7"
Bedroom 1
5.5m x 4.9m
18' 1" x 16' 1"
En-suite
2.3m x 1.6m
7' 7" x 5' 3"
Bedroom 2
4.2m x 3.3m
13' 9" x 10' 10"
En-suite
3.5m x 1.2m
11' 6" x 3' 11"
Bedroom 3
3.4m x 3.1m
11' 2" x 10' 2"
Bedroom 4/Study
3.4m (max) x 2.3m
11' 2" (max) x 7' 7"
Bathroom
2.3m x 1.6m
7' 7" x 5' 3"
Cart Lodge
6.1m x 5.3m
20' x 17' 5"
Garage/Store
5.2m x 5.2m
17' 1" x 17' 1"
Plans not to scale. Room dimensions for guidance only.
Please check actual sizes when visiting the site.
Although every care has been taken to ensure the accuracy of all the information on this website, the contents do not form part of any contract, or constitute a representation inducing any such contract. The developer reserves the right to alter any part of the development, specification or floor layouts at any time. Measurements given should not be relied upon for carpets etc and should be verified. The floor plans contained on this website are taken from working drawings and dimensions may vary slightly to finished properties.